Település: Miskolc
Városrész: Diósgyőr
Általános bemutatás
Exkluzív új építésű lakások Diósgyőr szívében – Modern otthonok a minőség jegyében!
Megkezdődik Miskolc egyik legdinamikusabban fejlődő városrészében, Diósgyőr központjában egy új, modern társasház lakásainak értékesítése. A Törökverő utca 1. szám alatt épülő, prémium kivitelezésű ingatlan 2026 elején kulcsrakész állapotban várja első lakóit.
Ez a lakópark tökéletes választás mindazok számára, akik a kényelmet, a biztonságot és a magas minőséget keresik egy kiváló elhelyezkedésű, mégis nyugodt környezetben.
Főbb jellemzők és előnyök:
- Kiváló elhelyezkedés: Az ingatlan Diósgyőr központjában található, ahonnan a tömegközlekedés, üzletek és szolgáltató egységek mindössze pár perc sétával elérhetőek.
- Zárt, privát közösség: A társasház egy kizárólag a lakók által használható, körülkerített területen helyezkedik el. A gondozott, térkövezett és füvesített közös udvar parkosított zöldterületként funkcionál, biztosítva a nyugodt pihenést.
- Energetikai hatékonyság és modern technológia: Az épület a kor legmagasabb energetikai, üzemeltetési és esztétikai igényeinek megfelel.
- Szigetelés: 15 cm homlokzati, 20 cm lapostető és 10 cm szintközi szigetelés garantálja az alacsony rezsiköltséget.
- Fűtés és hűtés: A modern hőszivattyús rendszer radiátoros hőleadókkal és kiegészítő fan-coil egységekkel biztosítja a kellemes hőmérsékletet, a hűtésről pedig minden szobában fan-coil gondoskodik.
- Nyílászárók: Műanyag, 3 rétegű üvegezésű nyílászárók, rejtett redőnytok előkészítéssel.
- Praktikus kialakítás: A földszinten különálló garázsok, tárolók és közös helyiségek kerültek kialakításra. A tágas, felülről bevilágított lépcsőház egyedi hangulatot kölcsönöz az épületnek.
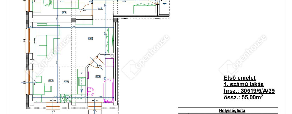
- Változatos lakásméretek: Az I. és II. emeleten különféle alapterületű lakások közül választhat: 34 m², 56 m², 67 m², 75 m², 82 m², 99 m².
- Kulcsrakész átadás: A vételár tartalmazza a magas minőségű burkolatokat, szanitereket, szerelvényeket és belső ajtókat. Az internet és kábeltévé hálózata kiépített, a konyhában minden szükséges gépészeti csatlakozás (tűzhely, mosogatógép, hűtő) biztosított (a konyhabútor nem része az ingatlan árának).
- Egyedi mérők: Minden közmű (áram, hidegvíz, melegvíz, hűtés, fűtés) fogyasztása lakásonként külön mérőórával kerül elszámolásra.
Finanszírozás:
A vásárláshoz valamennyi állami támogatás (például CSOK Plusz), babaváró hitel és banki hitel igénybe vehető, rugalmas finanszírozási lehetőségeket kínálva.
Ne maradjon le a lehetőségről!
Biztosítsa be álmai otthonát Diósgyőr új lakóparkjában. További információért, műszaki tartalomért és a megvásárolható lakások pontos alaprajzaiért keressen minket bizalommal a megadott elérhetőségeken.
Átadás
Tervezett átadás időpontja: 2026-01-31
Projekthez tartozó ingatlanok
| Azonosító | Ingatlan típusa | Emelet | Lakótér (m2) | Szobák száma | Ebből hálószobák száma | Ár (Ft) | Státusz | ||||||||
|---|---|---|---|---|---|---|---|---|---|---|---|---|---|---|---|
| Azonosító: | #178576 | Ingatlan típusa: | Társasházi lakás | Emelet: | 1. emelet | Alapterület (m2): | 75 | Szobák száma: | 3 | Ebből hálószobák száma: | 0 | Ár (Ft): | 60 000 000 Ft | Státusz: | Eladó |
| Azonosító: | #178577 | Ingatlan típusa: | Társasházi lakás | Emelet: | 1. emelet | Alapterület (m2): | 67 | Szobák száma: | 3 | Ebből hálószobák száma: | 0 | Ár (Ft): | 53 000 000 Ft | Státusz: | Eladó |
| Azonosító: | #178578 | Ingatlan típusa: | Társasházi lakás | Emelet: | 1. emelet | Alapterület (m2): | 99 | Szobák száma: | 4 | Ebből hálószobák száma: | 0 | Ár (Ft): | 79 000 000 Ft | Státusz: | Eladó |
| Azonosító: | #178579 | Ingatlan típusa: | Társasházi lakás | Emelet: | 1. emelet | Alapterület (m2): | 82 | Szobák száma: | 3 | Ebből hálószobák száma: | 0 | Ár (Ft): | 65 000 000 Ft | Státusz: | Eladó |
| Azonosító: | #178580 | Ingatlan típusa: | Társasházi lakás | Emelet: | 1. emelet | Alapterület (m2): | 34 | Szobák száma: | 1 | Ebből hálószobák száma: | 0 | Ár (Ft): | 28 000 000 Ft | Státusz: | Eladó |














































